GB/T 14689-2008
技术制图图纸幅面和格式——图幅分区
Technical drawings-Size and layout of drawing sheets
(IS0 5457:1999,Technical product documentationSizes andlayout of drawing sheets,MOD)
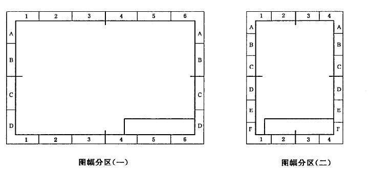
1. 必要时, 可以用细实线在图纸周边内画出分区, 如图 1 所示。

图 1 图幅分区
2. 图幅分区数目按图样的复杂程度确定, 但必须取偶数。每一分区的长度应在 25mm~75mm 之间选择。
3. 分区的编号, 沿上下方向 (按看图方向确定图纸的上下和左右) 用大写拉丁字母从上到下顺序编写, 沿水平方向用阿拉伯数字从左到右顺序编写。
当分区数超过拉丁字母的总数时, 超过的各区可用双重字母依次编写, 例如 AA,BB,CC,……等拉丁字母和阿拉伯数字的位置应尽量靠近图框线。
4. 在图样中标注分区代号时, 分区代号由拉丁字母和阿拉伯数字组合面成, 字母在前、数字在后并排地书写, 如 B3、C5 等。
当分区代号与图形名称同时标注时, 则分区代号写在图形名称的后边, 中间空出一个字母的宽度。例如:A B3;E-E A7; C5 等
正文完